Skip to content

Restaurant Upblast Commercial Hood Exhaust Fan 34 x 34 Base 1 HP 6414 CFM

Ships LTL/Freight ONLY
Sold out
Original price $0.00 - Original price $0.00
Original price $0.00
$2,200.00
$2,200.00 - $2,200.00
Current price $2,200.00
This is a Fantech 5BDU24FB belt drive fan 1 HP 1 Phase that gives you 6414 CFM at 0.00" Static Pressure. This fan comes with the shell, motor and drive pack separate to be assembled in the field.

115v / 208v / 230v 

1 Phase

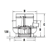
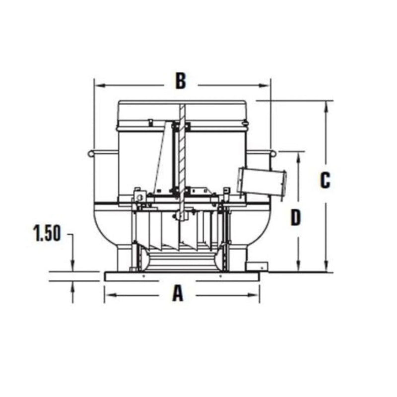
Dimensions *See diagram photo

(A) 34" x 34" Base

(B) 42 3/8"

(C) 33"

(D) 24 1/2"

Upblast discharge design

Suitable for wall application

Spun aluminum construction with steel support braces

Weather resistant aluminum windband, motor enclosure, and cover

Ball bearing motors and variable pitch drives are packed separately when ordered with ventilators

Backward inclined aluminum fan wheel

Externally cooled motor compartment

Inlet temperatures up to 300°F

Permanently lubricated ball bearings

Motor and wheel are easily detachable without removing ventilator from curb

Junction box mounted in motor compartment

Uni-Mount motor structure

A continuous venturi to windband weld virtually eliminates grease leakage

Welded curb cap corners eliminate water entry into ducts or building

Fully rolled windband bead for added strength, stability and ease of transport
Availability:
Out of stock