Skip to content

5BDU16FB Restaurant Upblast Commercial Hood Exhaust Fan 26 x 26 Base 1 HP 3674 CFM 1 Ph

Ships LTL/Freight ONLY
Sold out
Original price $0.00 - Original price $0.00
Original price $0.00
$1,875.00
$1,875.00 - $1,875.00
Current price $1,875.00

This is a Fantech 5BDU16FB belt drive fan 1 HP that gives you 3674 CFM at 0.00" Static Pressure. This fan comes with the shell, motor and drive pack separate to be assembled in the field.

115 / 208 / 230v

1 Phase

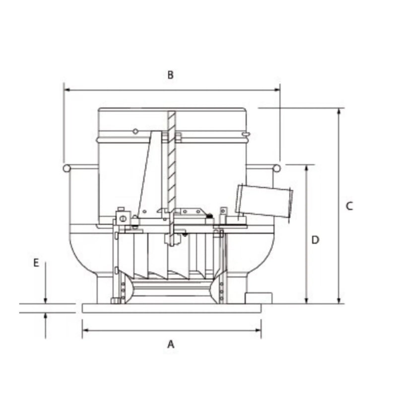
Dimensions *See diagram photo

(A) 26" x 26" Base

(B) 31.75"

(C) 27.75"

(D) 20.1667"


Upblast discharge design

Suitable for wall application

Spun aluminum construction with steel support braces

Weather resistant aluminum windband, motor enclosure, and cover

Ball bearing motors and variable pitch drives are packed separately when ordered with ventilators

Backward inclined aluminum fan wheel

Externally cooled motor compartment

Inlet temperatures up to 300°F

Permanently lubricated ball bearings

Motor and wheel are easily detachable without removing ventilator from curb

Junction box mounted in motor compartment

Uni-Mount motor structure

A continuous venturi to windband weld virtually eliminates grease leakage

Fully rolled windband bead for added strength, stability and ease of transport

Welded curb cap corners eliminate water entry into ducts or building

Availability:
Out of stock