Skip to content

5BDU15EX Restaurant Upblast Commercial Roof Exhaust Fan 3/4 HP 3 PHASE 26x26 Base 2810 CFM

Ships LTL/Freight ONLY
Original price $0.00 - Original price $0.00
Original price $0.00
$1,775.00
$1,775.00 - $1,775.00
Current price $1,775.00

3/4 HP, 208/230/460v, 3 Phase, 15" Diameter wheel, 2810 CFM, Upblast Exhaust Fan


This fan comes with the shell, motor and drive pack separate to be assembled in the field.

Belt-drive upblast ventilators are designed for roof mounted exhaust of commercial and industrial buildings. Suitable for roof and wall application. Durable spun aluminum construction with steel support braces. Backward inclined aluminum fan wheel. Motor and wheel are easily detachable without removing ventilator from curb.

  • All ventilators are listed UL 705 for electrical and UL 762 for restaurant exhaust in USA only
  • Inlet temperatures up to 300°F
  • Fully welded wind band
  • Externally cooled motor compartment

 

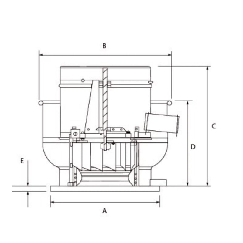
Dimensions: *See Diagram Photo

Dimension A: 26"

Dimension B: 29 7/8"

Dimension C: 27 3/8"

Dimension D: 19 3/8"

Dimension E: 1 1/2"

Availability:
Only 1 left!